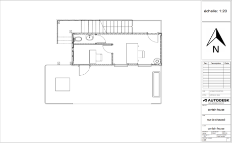
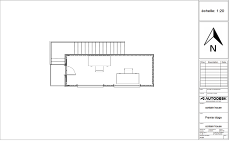
Plan architectural — bureaux avec deux conteneurs maritimes

01 — Construction modulaire

Bureaux
Conteneurs

Aménagement de bureaux modernes et éco-responsables à partir de conteneurs maritimes recyclés, alliant durabilité, rapidité d'exécution et esthétique industrielle contemporaine.

Le projet consiste en la conception d'un espace de travail réalisé avec deux conteneurs, intégrant isolation thermique et acoustique performante, menuiseries aluminium et aménagements intérieurs sur mesure. Nous avons dimensionné la structure pour garantir la stabilité et la sécurité, tout en optimisant les coûts et les délais de construction.

L'approche modulaire permet une mise en œuvre rapide sur site tout en garantissant une haute qualité de finition. L'aménagement extérieur a été pensé pour favoriser l'intégration paysagère et le confort des utilisateurs.